
for the first project of the fall semester of third year, we were instructed to develop a research facility, constructed of only 2x members and canvas, for 3 researchers (whose research we were to select). The facility is to be occupied between april and october for the next 5 years, in a park located in los angeles, right outside downtown.
the project began with a site visit and site analysis followed. in beginning the project, i felt the most important thing was to create comfort, providing a facility where the researchers could work to the best of their abilities. this included not only thermal comfort, which was very evident during the very hot site visit, but also issues of visual comfort, a sense of privacy as a collective research group from the public, and individual privacy through the prevision of a sense of place. 
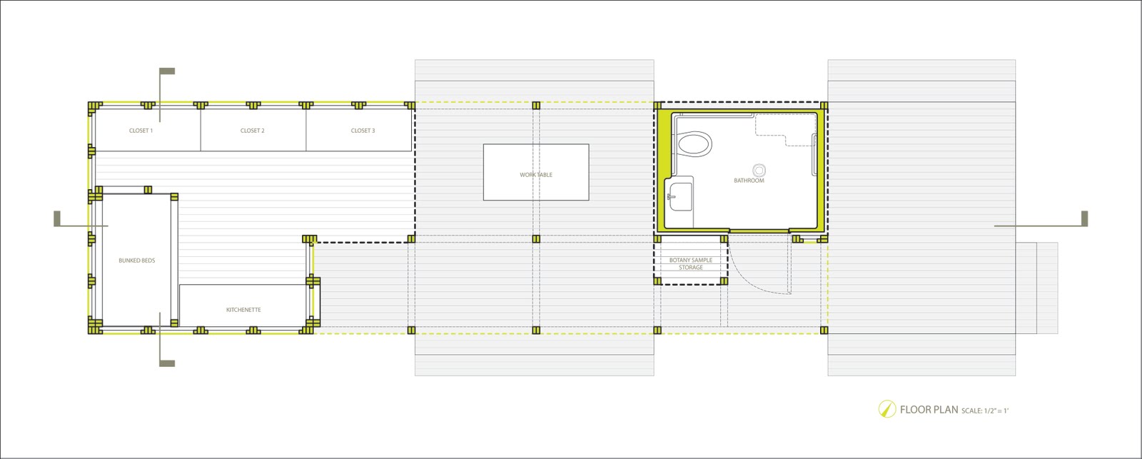
this last piece became an essential part of the design process in developing spaces for the three researchers; the astronomer, who would be studying the skies and how to combat the glow of the los angeles skyline, the botanist, who would be utilizing the differing environments throughout the park and their effect on plant-lift, and the yoga master, who would be studying the effect of the sound on the practice of yoga.
in response to the specific researchers, i began developing a sense of place for each researcher type, providing a roof deck for the astronomer, an area with a direct connection to the landscape, along with storage for samples for the botanist, and a deck with a view extending out to the park for the yoga master. the three then come together in community when resting and eating. 
in developing systems using the canvas and wood, the main goal was to create an environment that could be manipulated according to the needs of the researchers. this lead to a system of extensive operable louvers, oriented to allow warm morning light to enter and warm the space, while blocking southern afternoon light while allowing wind flow, as well as a canvas wrapping system allowing the researchers to completely open or completely close the entire system, achieving  a similar function, at a larger scale.  while the resultant structure is rather monololithic in material and form, the facility becomes activated when in use by the researchers, constantly changing form and responding to the needs of the inhabitants.
 









